
Зміна влади, її рішень, невизнання домовленостей – усе це сприяло тому, що досі у Шацьку не можуть привести до ладу документацію на археологічну пам’ятку – городище – багатошарове поселення від VII століття до н.е. до ХVII н.е., яке може розповісти про історію Шацького краю.
Землі городища належали колишньому колгоспу “Україна”. В 2011 році їх частково розпаювали, хоча влада пообіцяла ці землі замінити, оскільки представники громади наполягли на історичній важливості цих земель. Та територія пам’ятки, яка все ж залишилась не розпайована, кілька місяців тому була розорана, що нанесло їй значної шкоди. Саме відтоді проблема збереження археологічних земель стала знову актуальною.
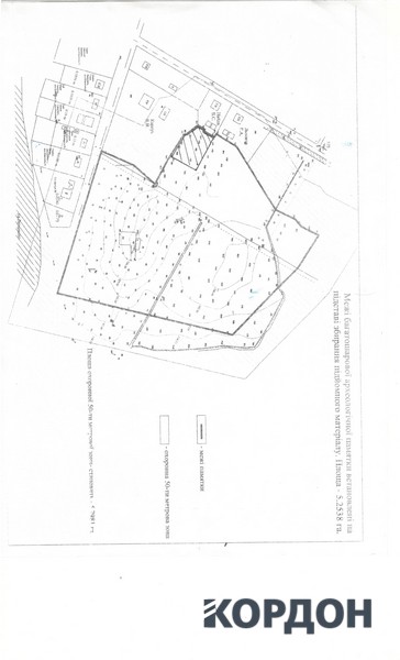
Варто нагадати, що до 2009 року Шацьк не мав чітко виділеного історичного ареалу населеного пункту. Було замало інформації, як зародилось і розвивалось селище. Та згодом почався пошук ймовірної історичної частини районного центру. Історики й краєзнавці зважили на думку арехолога Цинкаловського, який відмітив ще на початку ХХ століття територію городища, біля озера Люцимер. Сьогодні ця місцевість має назву – урочище Сад, а основну частину городища – ймовірний дитинець, місцеві люди назвали Гіркою.
Городище – це визначна історична пам’ятка, важливі і багатошарові поселення, що датуються VII століття до н.е. до ХVII н.е. Логічно, що біля місць, де жили люди, мають бути й місця поховань людей. Такий могильник знаходиться у декількох десятках метрів від городища.
У 2009 році Міністерством Культури України пам’ятку у Шацьку внесено до реєстру нерухомих пам’яток України. За категорією – це об’єкт культурної спадщини місцевого значення.
Та через зміну влади у Шацьку відповідно відбувались і зміни у баченні земельних питаннях району. Розпаювання земель все-таки відбулося у 2011 році, при чому в момент дії охоронного договору, який був дійсний до 2014 року. Згідно хибної думки тодішнього керівництва району на період розпаювання не було достатньо документів, щоб визнати більше 5-ти гектарів землі археологічною пам’яткою. Тому того ж 2011 року Шацька селищна рада дає рішення-дозвіл ДП «Волинські Старожитності» на розробку плану детального планування території в урочищі Сад, на якому розташоване городище. Пізніше виявилось, що ці землі знаходяться за межами населеного пункту, тому надавати такі рішення рада була не в праві. Детальний план територій так і не розробили, але й закони про охорону пам’яток такої документації і не передбачають.
Цікаво, що у 2011 році тодішній голова Шацької РДА виділив собі 0,15 га землі на території пам’ятки, але після підняття цього питання на обласному рівні за сприяння управління культури, голова відкликав своє рішення.

Не менш гостро постає проблема і сьогодні. Цієї осені землі історичної пам’ятки, а саме вищезгаданий дитинець городища за назвою Гірка, були розорані. За словами очевидців, це робота Віктора Карпука, директора санаторію “Лісова пісня”, що мешкає поруч. Це привело до нанесення значної шкоди городищу, але жоден представник влади ніяк не відреагував на це. Шацька селищна рада досі не підписує новий охоронний договір. Не займається даним питанням і відділ культури при Шацькій РДА, але посада охоронця пам’яток культури існує.
За період попередніх розкопок, що проводили тут науковці з Інституту Археології України було виявлено численну кількість різночасових об’єктів. В Любомльському краєзнавчому музеї створено вітрину присвячену археології Шацького району. На основі однієї знахідок розроблено герб Шацька. За матеріалами з пам’ятки науковці написали чимало праць, що часто публікувались за кордоном. Сьогодні, у зв’язку з тяжким становищем в країні, фінансування розкопок призупинене. Проте актуальність та можливість зберегти пам’ятку постає зараз як ніколи.
Так, звісно, територія городища є привабливою для багатьох. Її вигідне географічне розташування – околиця Шацька, поблизу озера Люцимер, не дають спокою кожному наступному посадовцю, який рано чи пізно формує якесь своє бачення ситуації і складає нові плани.
З інсайдерських джерел журналісти “КОРДОНу” отримали копії документів, що свідчать про тривалу боротьбу краєзнавців за можливість досліджувати історію Шацького краю.




Залишити коментар